Mijas

Te koop Residential Plot Costa Del Sol Mijas € 385.000,-

Ref.no: RSOR5310583
Price: € 385.000,-

1-7980e48d732b6fc85c14b43b94d2aa54.jpg

Te koop Residential Plot Costa Del Sol Mijas € 385.000,-

Superficie du terrain675m²
Poolno
Gardenyes
Parkingno
Cadre : Banlieue, Campagne, Village, Proche de la forêt
Orientatie: Zuid
Uitzicht: zee, bergen, land, panoramisch, zwembad, bos
Categorie: Koopje, Investering, Off-plan, Met bouwvergunning
Ref.no: RSOR5310583
Price: € 385.000,-

Plus d'information ›››
Te koop Residential Plot Costa Del Sol Mijas € 385.000,-

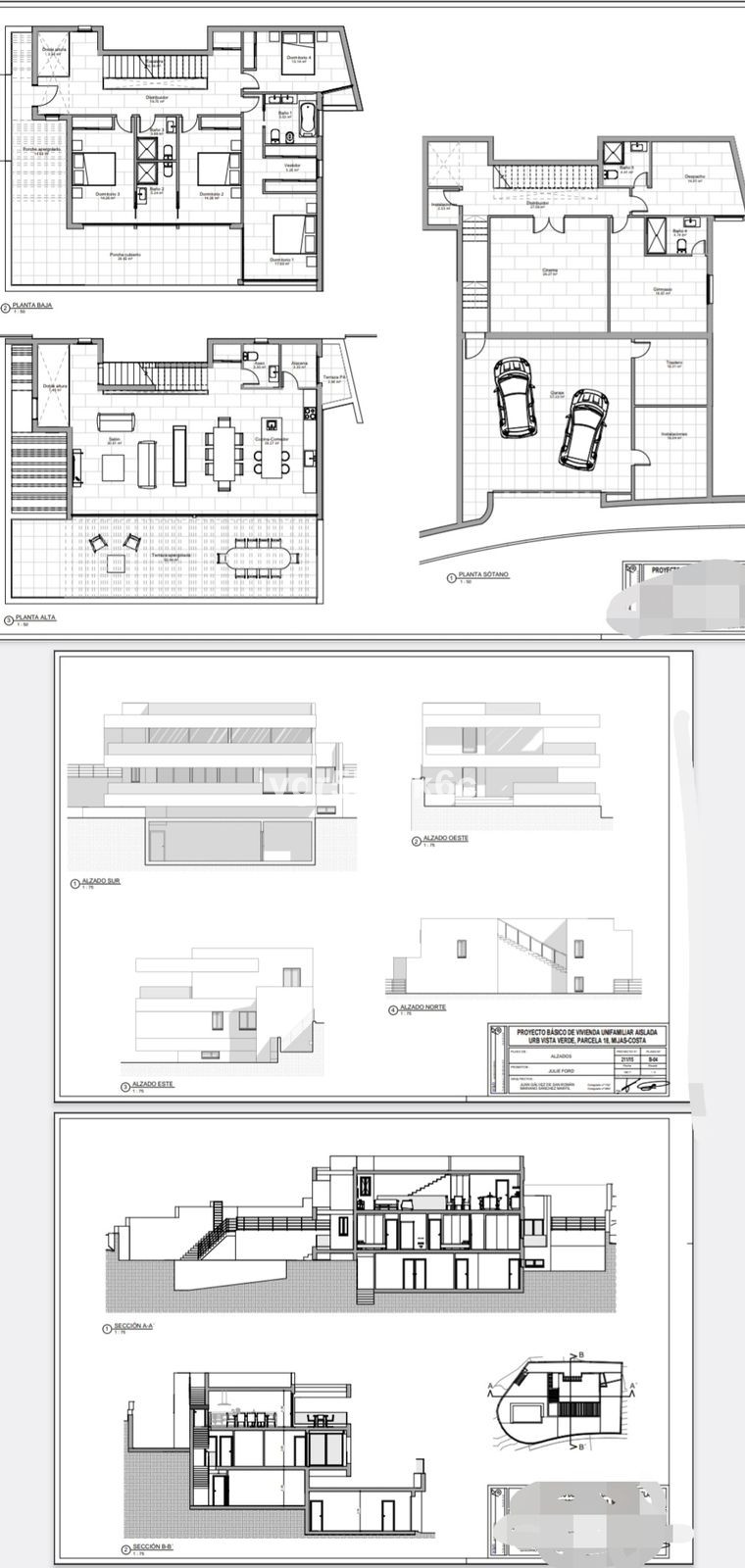
Dans le prestigieux lotissement fermé de Vista Verde, à seulement 5 minutes en voiture de Mijas ou de Fuengirola, vous trouverez cette incroyable opportunité de construire la maison de vos rêves avec une vue panoramique imprenable.

Sur ce terrain de 860 m², vous pouvez construire cette magnifique villa, le projet ayant été approuvé par la mairie et toutes les autorisations nécessaires étant en règle...

Son design contemporain et moderne offre un style de vie luxueux et sain, entouré d'espaces verts, d'air pur et de promenades champêtres.
Situé à l'écart du tumulte de la vie citadine, mais avec toutes les commodités à votre disposition.

Le vendeur de ce terrain dispose d'autres parcelles disponibles au sein du même lotissement et étudiera les offres d'achat des quatre, dont l'une est disponible pour la construction d'un local commercial pouvant offrir des services à ce lotissement et aux résidents locaux, tel qu'un café, un restaurant, un magasin ou un bar.

Alternatives

1-7980e48d732b6fc85c14b43b94d2aa54.jpg

Te koop Residential Plot Costa Del Sol La Cala Golf € 410.000,-

Price € 410.000,-
Plus d'information
1-7980e48d732b6fc85c14b43b94d2aa54.jpg

Te koop Residential Plot Costa Del Sol Elviria € 400.000,-

Price € 400.000,-
Plus d'information
1-7980e48d732b6fc85c14b43b94d2aa54.jpg

Te koop Residential Plot Costa Del Sol Mijas € 350.000,-

Price € 350.000,-
Plus d'information
1-7980e48d732b6fc85c14b43b94d2aa54.jpg

Te koop Grond Costa Del Sol Mijas € 435.000,-

Price € 435.000,-
Plus d'information
Disclaimer | Links
Casadelmar %lng_cookie_notice% %lng_close%
x