Mijas Costa

Te koop Residential Plot Costa Del Sol Mijas Costa € 695.000,-

Ref.no: RSOR5199793
Price: € 695.000,-

1-7980e48d732b6fc85c14b43b94d2aa54.jpg

Te koop Residential Plot Costa Del Sol Mijas Costa € 695.000,-

Superficie du terrain958m²
Poolno
Gardenyes
Parkingno
Ref.no: RSOR5199793
Price: € 695.000,-

Plus d'information ›››
Te koop Residential Plot Costa Del Sol Mijas Costa € 695.000,-

Opportunité au cœur de Mijas Costa

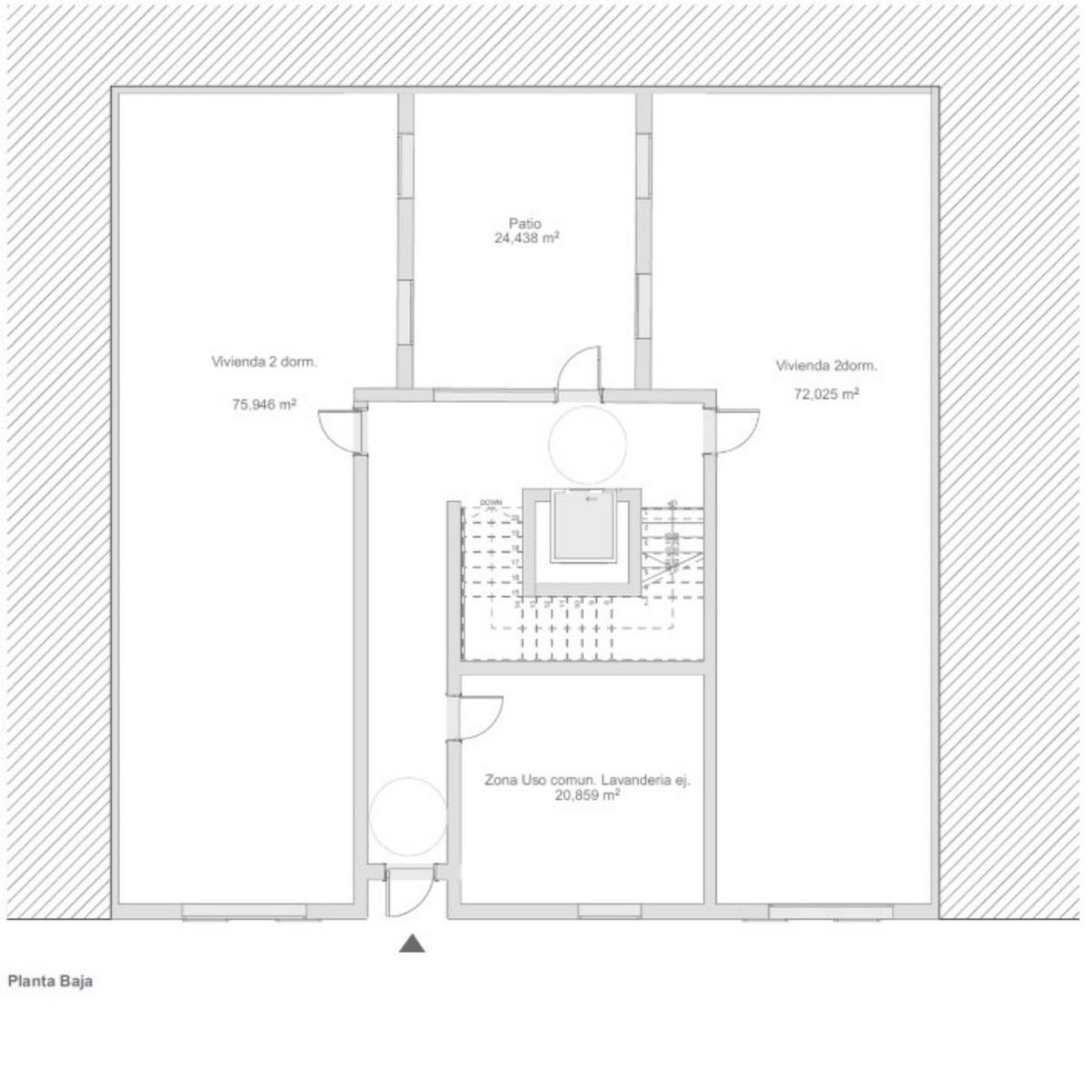
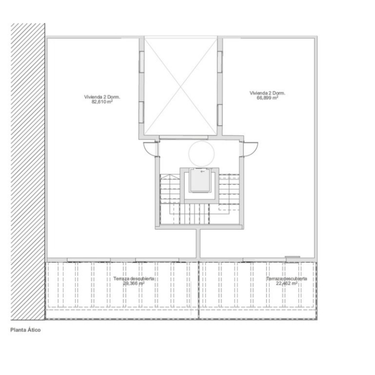
Charmante maison ancienne située en plein centre de Mijas Costa, avec un projet approuvé pour construire un nouveau développement de 10 appartements.
Bénéficiez d'un emplacement imbattable à proximité de toutes les commodités — commerces, restaurants, transports et tout ce dont vous avez besoin pour un style de vie confortable.

Parfait comme investissement ou développement résidentiel dans l'une des zones les plus recherchées de la Costa del Sol.

« Comprend le terrain actuel et le projet architectural. »

???? N'hésitez pas à nous contacter pour plus d'informations !

Alternatives

1-7980e48d732b6fc85c14b43b94d2aa54.jpg

Te koop Residential Plot Costa Del Sol Estepona € 700.000,-

Price € 700.000,-
Plus d'information
1-7980e48d732b6fc85c14b43b94d2aa54.jpg

Te koop Residential Plot Costa Del Sol Sotogrande € 685.000,-

Price € 685.000,-
Plus d'information
1-7980e48d732b6fc85c14b43b94d2aa54.jpg

Te koop Residential Plot Costa Del Sol Mijas Golf € 600.000,-

Price € 600.000,-
Plus d'information
1-7980e48d732b6fc85c14b43b94d2aa54.jpg

Te koop Residential Plot Costa Del Sol Sotogrande € 725.000,-

Price € 725.000,-
Plus d'information
Disclaimer | Links
Casadelmar %lng_cookie_notice% %lng_close%
x